• Главная
  • планировка дачного туалета и душа

Планировка дачного туалета и душа

2 января 2024 / 0 комментариев / 40 просмотров

Планировка дачного туалета и душа играет важную роль в комфорте пребывания на даче. В данной статье мы рассмотрим различные варианты планировки и дизайна дачных туалетов и душевых, а также поделимся полезными советами по обустройству.

планировка дачного туалета и душа
1
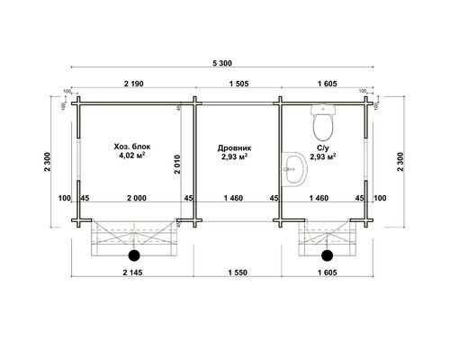
План хозблока с душем
планировка дачного туалета и душа
2
Дачный туалет с душем чертежи Размеры
планировка дачного туалета и душа
3
Хозблок 3х5 чертеж
планировка дачного туалета и душа
4
Туалет - душ - хозблок (размер 2-1,2-1,2 м)
планировка дачного туалета и душа
5
планировка дачного туалета и душа
6
Летний душ для дачи чертежи с раздевалкой и туалетом
планировка дачного туалета и душа
7
Хозблок 2х3 чертеж
планировка дачного туалета и душа
8
Угловой хозблок с душем и туалетом
планировка дачного туалета и душа
9
Хозблок 3х5 чертеж
планировка дачного туалета и душа
10
Дачный туалет с душем чертежи Размеры
планировка дачного туалета и душа
11
Хозблок 3 в1 душ туалет и сарай
планировка дачного туалета и душа
12
Дачный душ дт18
планировка дачного туалета и душа
13
Хоз блок душ туалет сарай 6х3
планировка дачного туалета и душа
14
Дачный туалет чертежи с размерами
планировка дачного туалета и душа
15
Душ дачный с туалетом ДТ-18-2
планировка дачного туалета и душа
16
Туалет - душ - хозблок (размер 2-1,2-1,2 м)
планировка дачного туалета и душа
17
Хозблок с душем и туалетом для дачи проекты
планировка дачного туалета и душа
18
Туалет с душем для дачи
планировка дачного туалета и душа
19
планировка дачного туалета и душа
20
Хозблок 3 в1 душ туалет и сарай
планировка дачного туалета и душа
21
Туалет душ и сарай под одной крышей для дачи
планировка дачного туалета и душа
22
Хоз блок душ туалет сарай 6х3
планировка дачного туалета и душа
23
Туалет с кладовкой для дачи
планировка дачного туалета и душа
24
Чертеж каркасного сарая 4х3
планировка дачного туалета и душа
25
Туалет с выгребной ямой чертеж
планировка дачного туалета и душа
26
Санузел в каркасном доме
планировка дачного туалета и душа
27
Туалет - душ - хозблок (размер 2-1,2-1,2 м)
планировка дачного туалета и душа
28
Летний душ для дачи
планировка дачного туалета и душа
29
Угловая беседка для дачи
планировка дачного туалета и душа
30
Туалет с душем для дачи
планировка дачного туалета и душа
31
Хозблок с дровником из минибруса
планировка дачного туалета и душа
32
Душевая на даче своими руками с раздевалкой чертеж
планировка дачного туалета и душа
33
планировка дачного туалета и душа
34
Фундамент под хозблок и туалет на даче
планировка дачного туалета и душа
35
Сарай Biohort
планировка дачного туалета и душа
36
Туалет - душ - хозблок (размер 2-1,2-1,2 м)
планировка дачного туалета и душа
37
Хоз блок душ туалет сарай 6х3
планировка дачного туалета и душа
38
Туалет с хозблоком для дачи
планировка дачного туалета и душа
39
Туалет с душем для дачи
планировка дачного туалета и душа
40
Сарай с туалетом для дачи
планировка дачного туалета и душа
41
Туалет с душем для дачи
планировка дачного туалета и душа
42
Душевая в бане
планировка дачного туалета и душа
43
Душ дачный с туалетом ДТ-18-2
планировка дачного туалета и душа
44
Туалет с хозблоком для дачи
планировка дачного туалета и душа
45
Садовый туалет с душем
планировка дачного туалета и душа
46
Дачный туалет домиком
планировка дачного туалета и душа
47
Чертеж дачный туалет Теремок
планировка дачного туалета и душа
48
планировка дачного туалета и душа
49
Уличный туалет с душем для дачи деревянный
планировка дачного туалета и душа
50
Хозблок с летним душем
планировка дачного туалета и душа
51
Дровник-хозблок 2х4
планировка дачного туалета и душа
52
Душ дачный с туалетом ДТ-18-1
планировка дачного туалета и душа
53
Бытпром хозблок с душем и туалетом
планировка дачного туалета и душа
54
Хоз блок душ туалет сарай 6х3
планировка дачного туалета и душа
55
Туалетная комната на даче
планировка дачного туалета и душа
56
Сарай с туалетом для дачи
планировка дачного туалета и душа
57
Хозблок с туалетом 4500*2500 ОСП
планировка дачного туалета и душа
58
Туалет душ 2 в 1
планировка дачного туалета и душа
59
Летний душ с туалетом
планировка дачного туалета и душа
60
Проект хозблока с душем и туалетом
планировка дачного туалета и душа
61
Туалет дачный
планировка дачного туалета и душа
62
Хозблок 6м*2,3м (№6013)
планировка дачного туалета и душа
63
Душ дачный с туалетом ДТ-18-1
планировка дачного туалета и душа
64
Дачная бытовка Василек
планировка дачного туалета и душа
65
Туалет с душем для дачи
планировка дачного туалета и душа
66
Чертеж бытовки 6х2.3
планировка дачного туалета и душа
67
Хозблок 2х2 сборный щитовой
планировка дачного туалета и душа
68
Сарай с туалетом для дачи
планировка дачного туалета и душа
69
Туалет с душем для дачи
планировка дачного туалета и душа
70
Летняя душевая из еврокуба
планировка дачного туалета и душа
71
Хозблок на даче с туалетом и душем своими руками чертеж
планировка дачного туалета и душа
72
Туалет с умывальником на даче
планировка дачного туалета и душа
73
Туалет с душем для дачи деревянный проект
планировка дачного туалета и душа
74
Сарай 2х3 чертеж
планировка дачного туалета и душа
75
Туалет типа пудр-клозет
планировка дачного туалета и душа
76
Сарай 2 на 3
планировка дачного туалета и душа
77
Дачный туалет с душем
планировка дачного туалета и душа
78
Туалет дачный
планировка дачного туалета и душа
79
Туалет - душ - хозблок (размер 2-1,2-1,2 м)
планировка дачного туалета и душа
80
Схема ванной комнаты с душевой кабиной 6м2
планировка дачного туалета и душа
81
Хозблок 2х2 сборный щитовой
планировка дачного туалета и душа
82
Летний душ для дачи
планировка дачного туалета и душа
83
Душ дачный с туалетом ДТ-18-1
планировка дачного туалета и душа
84
Пудр-клозет для дачи чертежи
планировка дачного туалета и душа
85
Дачный туалет с кладовкой
планировка дачного туалета и душа
86
Туалет с душем для дачи
планировка дачного туалета и душа
87
Сарайчик (малый сарай)
планировка дачного туалета и душа
88
Дачный туалет пудр клозет чертежи
планировка дачного туалета и душа
89
Каркасный сарай 2.5х5
планировка дачного туалета и душа
90
Хозпостройки для дачи с туалетом и душем
планировка дачного туалета и душа
91
Душевая с туалетом для дачи
планировка дачного туалета и душа
92
Пудр-клозет чертеж
планировка дачного туалета и душа
93
Металлический сарай Greenstorage Белла b 267х117
планировка дачного туалета и душа
94
Садовый туалет с умывальником
планировка дачного туалета и душа
95
Туалет+душ+хоз-блок«т-d-x-20»
планировка дачного туалета и душа
96
Пластиковый сарай Keter Fusion 757
планировка дачного туалета и душа
97
Хозпостройки на дачном участке
планировка дачного туалета и душа
98
Туалет дачный
планировка дачного туалета и душа
99
Пластиковый сарай Factor 4х6
планировка дачного туалета и душа
100
планировка дачного туалета и душа
101
Летний душ для дачи
планировка дачного туалета и душа
102
планировка дачного туалета и душа
103
Каркасный туалет с душем для дачи
планировка дачного туалета и душа
104
Минимальные габариты санузла душевая кабина+унитаз
планировка дачного туалета и душа
105
Хозблок с туалетом
планировка дачного туалета и душа
106
Туалет дачный
планировка дачного туалета и душа
107
Мобильная баня (6х2 м / 6х2,4 м / 6х3 м) с крыльцом
планировка дачного туалета и душа
108
планировка дачного туалета и душа
109
Душ для дачи
планировка дачного туалета и душа
110
Хозблок с дровником и беседкой
планировка дачного туалета и душа
111
Круглый уличный туалет
планировка дачного туалета и душа
112
планировка дачного туалета и душа
113
Хозблок 3 в1 душ туалет и сарай

Варианты планировки

Существует множество вариантов планировки дачного туалета и душа, от компактных и функциональных до более просторных и роскошных. Важно учитывать особенности местности, доступные ресурсы и потребности пользователей.

Оставьте комментарий

Ваш электронный адрес не будет опубликован.