• Главная
  • расстояние от печи до полок в бане

Расстояние от печи до полок в бане

10 января 2024 / 0 комментариев / 26 просмотров

Определение правильного расстояния от печи до полок в бане играет важную роль для комфортного отдыха и безопасности. В данной статье мы рассмотрим основные принципы определения этого расстояния, а также предоставим множество фотографий для визуальной демонстрации.

расстояние от печи до полок в бане
1
Harvia Legend 240 Duo чертежи
расстояние от печи до полок в бане
2
Печка Harvia для сауны 14 КВТ
расстояние от печи до полок в бане
3
расстояние от печи до полок в бане
4
Харвия профи 26
расстояние от печи до полок в бане
5
Противопожарный зазор между печью и стеной
расстояние от печи до полок в бане
6
расстояние от печи до полок в бане
7
расстояние от печи до полок в бане
8
Банная печь Harvia 50
расстояние от печи до полок в бане
9
Harvia 20 LS Pro
расстояние от печи до полок в бане
10
Минерит для бани монтаж
расстояние от печи до полок в бане
11
Плита Flamma схема монтажа
расстояние от печи до полок в бане
12
расстояние от печи до полок в бане
13
расстояние от печи до полок в бане
14
Дровяная банная печь Теплодар Сибирский Утес 20 ЛП профи
расстояние от печи до полок в бане
15
расстояние от печи до полок в бане
16
Подключение трёхфазного каменки в сауну
расстояние от печи до полок в бане
17
Банная печь с топкой из предбанника схема
расстояние от печи до полок в бане
18
Высота потолка в сауне с электрокаменкой 4.5 КВТ
расстояние от печи до полок в бане
19
Планировка парилки 2х3
расстояние от печи до полок в бане
20
расстояние от печи до полок в бане
21
Harvia Legend 240 Duo чертежи
расстояние от печи до полок в бане
22
расстояние от печи до полок в бане
23
Планировка парилки 2х3
расстояние от печи до полок в бане
24
Печь Теплодар Сибирь 30 ЛК
расстояние от печи до полок в бане
25
Высота потолка в сауне с электрокаменкой 4.5 КВТ
расстояние от печи до полок в бане
26
расстояние от печи до полок в бане
27
Пожарная разделка дымовой трубы
расстояние от печи до полок в бане
28
расстояние от печи до полок в бане
29
Harvia Legend 240 Duo чертежи
расстояние от печи до полок в бане
30
Парилка 2.5 на 2.5 схема
расстояние от печи до полок в бане
31
Парилка 2.5 на 2.5 схема
расстояние от печи до полок в бане
32
расстояние от печи до полок в бане
33
расстояние от печи до полок в бане
34
расстояние от печи до полок в бане
35
Правильная вентиляция в парилке схема и устройство
расстояние от печи до полок в бане
36
Размеры полков в парилке 2.2 на 2.2
расстояние от печи до полок в бане
37
расстояние от печи до полок в бане
38
Вентиляция сауны с электрокаменкой в частном доме
расстояние от печи до полок в бане
39
Схема вентиляции в парилке
расстояние от печи до полок в бане
40
расстояние от печи до полок в бане
41
Устройство полков в парилке чертеж
расстояние от печи до полок в бане
42
Схема монтажа оборудования хамама
расстояние от печи до полок в бане
43
Полог в парилке 2х2
расстояние от печи до полок в бане
44
расстояние от печи до полок в бане
45
расстояние от печи до полок в бане
46
Полог в парилке 2х2 чертеж
расстояние от печи до полок в бане
47
Планировка бани 3х2.5
расстояние от печи до полок в бане
48
Планировка парилки 2х3
расстояние от печи до полок в бане
49
расстояние от печи до полок в бане
50
расстояние от печи до полок в бане
51
расстояние от печи до полок в бане
52
Печь Harvia m3 SL
расстояние от печи до полок в бане
53
Печь для сауны Klafs
расстояние от печи до полок в бане
54
Дверь в парную Размеры
расстояние от печи до полок в бане
55
Парилка 2х2 планировка с электропечкой
расстояние от печи до полок в бане
56
Печь харвия 50 SL дровяная
расстояние от печи до полок в бане
57
Дровяная печь Harvia 20 Pro
расстояние от печи до полок в бане
58
расстояние от печи до полок в бане
59
расстояние от печи до полок в бане
60
расстояние от печи до полок в бане
61
Печь отопительная с теплообменником на 600
расстояние от печи до полок в бане
62
расстояние от печи до полок в бане
63
Печь Ферингер с выносной топкой
расстояние от печи до полок в бане
64
Печь Каменка_2 в парилке
расстояние от печи до полок в бане
65
расстояние от печи до полок в бане
66
Парилка 1.5 на 2 чертеж
расстояние от печи до полок в бане
67
Банная печь Вира Кристалл чертежи
расстояние от печи до полок в бане
68
Дымоход для бани сэндвич узел прохода
расстояние от печи до полок в бане
69
Полог в парилке 2х2
расстояние от печи до полок в бане
70
Плита Flamma (Минерит)в парной
расстояние от печи до полок в бане
71
Вентиляция сауны с электрокаменкой
расстояние от печи до полок в бане
72
Печь для сауны архикад
расстояние от печи до полок в бане
73
Сборка сэндвич трубы для бани
расстояние от печи до полок в бане
74
Печь Варвара Каменка Размеры
расстояние от печи до полок в бане
75
Полог в парилке 2х2
расстояние от печи до полок в бане
76
Полки для сауны щель между досками
расстояние от печи до полок в бане
77
Парилка 1800х1800
расстояние от печи до полок в бане
78
Планировка парилка парилка 2х2
расстояние от печи до полок в бане
79
Оптимальный размер парилки на 3 человека
расстояние от печи до полок в бане
80
Парилка 2х2 планировка
расстояние от печи до полок в бане
81
Парилка 1.5 на 2 чертеж
расстояние от печи до полок в бане
82
расстояние от печи до полок в бане
83
расстояние от печи до полок в бане
84
Сауна Harvia variant s1515
расстояние от печи до полок в бане
85
расстояние от печи до полок в бане
86
Harvia Vega Compact bc35
расстояние от печи до полок в бане
87
Высота полков в парилке чертежи
расстояние от печи до полок в бане
88
Схема установки дымовой сэндвич трубы
расстояние от печи до полок в бане
89
расстояние от печи до полок в бане
90
Электрокаменка Harvia hidden Heater
расстояние от печи до полок в бане
91
Печь для парилки 2х2
расстояние от печи до полок в бане
92
Печь отопительная Теплодар т-100
расстояние от печи до полок в бане
93
расстояние от печи до полок в бане
94
Парная 2х2 планировка парилки
расстояние от печи до полок в бане
95
расстояние от печи до полок в бане
96
расстояние от печи до полок в бане
97
Печь Ангара 4 с топкой из предбанника
расстояние от печи до полок в бане
98
ППУ для дымохода схема
расстояние от печи до полок в бане
99
Печь харвия в парилке
расстояние от печи до полок в бане
100
Электрическая банная печь Harvia Vega Compact bc35
расстояние от печи до полок в бане
101
Конструкция сауны
расстояние от печи до полок в бане
102
Каркас полков в парилке чертежи
расстояние от печи до полок в бане
103
Парилка 1800х1800

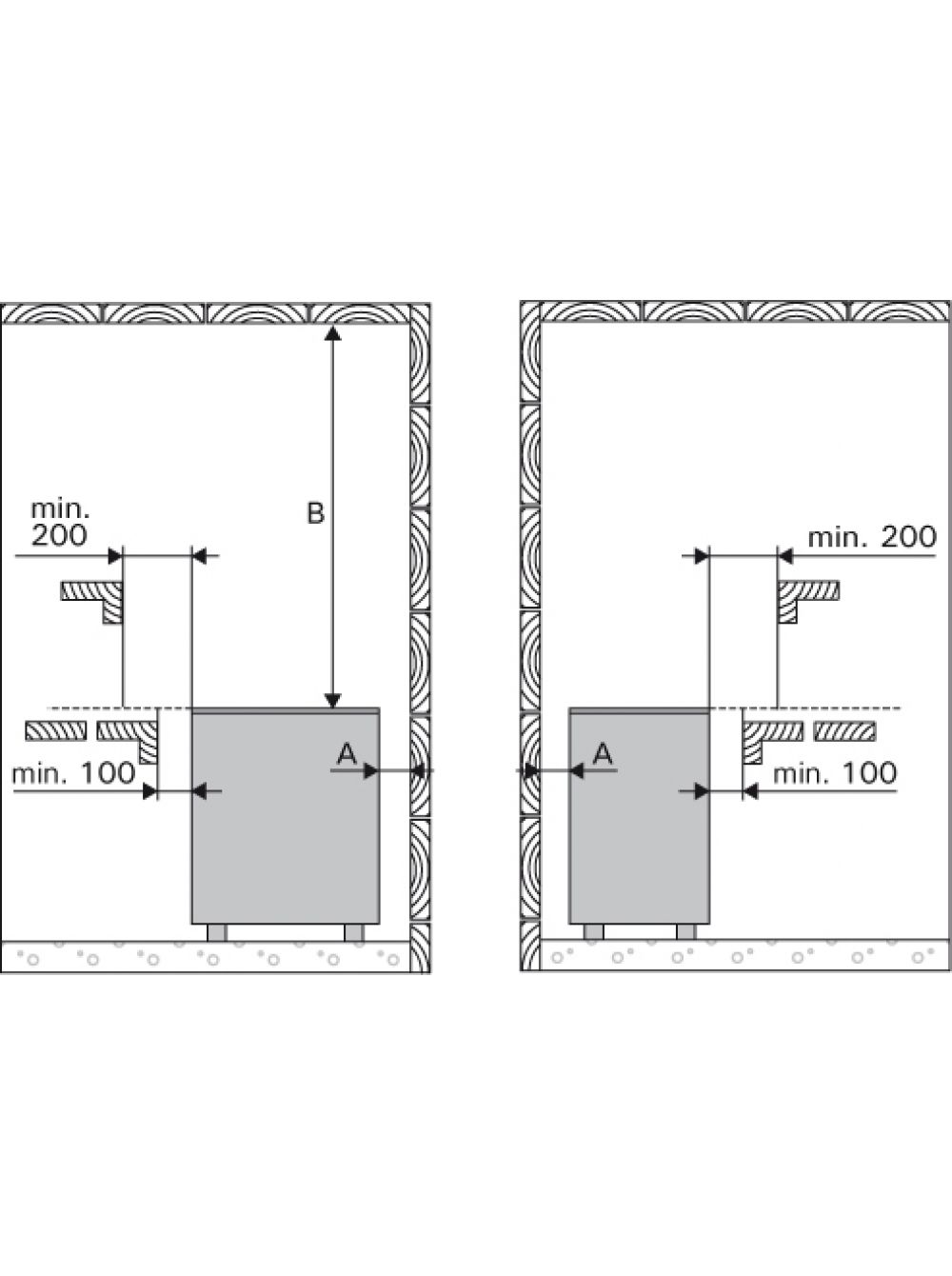
Принципы определения расстояния

Для начала необходимо учитывать тип печи, ее мощность, а также материал, из которого изготовлены полки. Общепринятой практикой считается, что расстояние от печи до полок должно быть не менее определенного значения, чтобы избежать перегрева и обеспечить комфортное положение для отдыхающих.

Оставьте комментарий

Ваш электронный адрес не будет опубликован.