• Главная
  • планировка кухни ресторана на 50 мест

Планировка кухни ресторана на 50 мест

7 января 2024 / 0 комментариев / 55 просмотров

Планировка кухни ресторана играет ключевую роль в обеспечении эффективной работы персонала и обслуживании посетителей. При проектировании кухни для ресторана на 50 мест необходимо учитывать различные аспекты, включая организацию рабочих зон, распределение оборудования и обеспечение безопасности. В данной статье мы рассмотрим основные принципы планировки кухни ресторана и предоставим множество фотографий для вдохновения.

планировка кухни ресторана на 50 мест
1
планировка кухни ресторана на 50 мест
2
планировка кухни ресторана на 50 мест
3
планировка кухни ресторана на 50 мест
4
планировка кухни ресторана на 50 мест
5
планировка кухни ресторана на 50 мест
6
планировка кухни ресторана на 50 мест
7
планировка кухни ресторана на 50 мест
8
планировка кухни ресторана на 50 мест
9
планировка кухни ресторана на 50 мест
10
планировка кухни ресторана на 50 мест
11
планировка кухни ресторана на 50 мест
12
Ресторант Флоор план
планировка кухни ресторана на 50 мест
13
планировка кухни ресторана на 50 мест
14
планировка кухни ресторана на 50 мест
15
планировка кухни ресторана на 50 мест
16
планировка кухни ресторана на 50 мест
17
планировка кухни ресторана на 50 мест
18
планировка кухни ресторана на 50 мест
19
планировка кухни ресторана на 50 мест
20
планировка кухни ресторана на 50 мест
21
планировка кухни ресторана на 50 мест
22
планировка кухни ресторана на 50 мест
23
планировка кухни ресторана на 50 мест
24
Схема проектируемого цеха столовой
планировка кухни ресторана на 50 мест
25
планировка кухни ресторана на 50 мест
26
планировка кухни ресторана на 50 мест
27
планировка кухни ресторана на 50 мест
28
планировка кухни ресторана на 50 мест
29
Схема проектируемого цеха столовой
планировка кухни ресторана на 50 мест
30
планировка кухни ресторана на 50 мест
31
планировка кухни ресторана на 50 мест
32
планировка кухни ресторана на 50 мест
33
планировка кухни ресторана на 50 мест
34
планировка кухни ресторана на 50 мест
35
планировка кухни ресторана на 50 мест
36
планировка кухни ресторана на 50 мест
37
планировка кухни ресторана на 50 мест
38
планировка кухни ресторана на 50 мест
39
планировка кухни ресторана на 50 мест
40
планировка кухни ресторана на 50 мест
41
планировка кухни ресторана на 50 мест
42
планировка кухни ресторана на 50 мест
43
планировка кухни ресторана на 50 мест
44
Чертеж небольшого кафе
планировка кухни ресторана на 50 мест
45
планировка кухни ресторана на 50 мест
46
планировка кухни ресторана на 50 мест
47
планировка кухни ресторана на 50 мест
48
планировка кухни ресторана на 50 мест
49
планировка кухни ресторана на 50 мест
50
планировка кухни ресторана на 50 мест
51
планировка кухни ресторана на 50 мест
52
планировка кухни ресторана на 50 мест
53
планировка кухни ресторана на 50 мест
54
планировка кухни ресторана на 50 мест
55
планировка кухни ресторана на 50 мест
56
планировка кухни ресторана на 50 мест
57
планировка кухни ресторана на 50 мест
58
планировка кухни ресторана на 50 мест
59
планировка кухни ресторана на 50 мест
60
планировка кухни ресторана на 50 мест
61
планировка кухни ресторана на 50 мест
62
планировка кухни ресторана на 50 мест
63
планировка кухни ресторана на 50 мест
64
планировка кухни ресторана на 50 мест
65
планировка кухни ресторана на 50 мест
66
планировка кухни ресторана на 50 мест
67
планировка кухни ресторана на 50 мест
68
планировка кухни ресторана на 50 мест
69
План кафе в театре
планировка кухни ресторана на 50 мест
70
планировка кухни ресторана на 50 мест
71
Ресторант Флоор план
планировка кухни ресторана на 50 мест
72
планировка кухни ресторана на 50 мест
73
планировка кухни ресторана на 50 мест
74
План кафе в театре
планировка кухни ресторана на 50 мест
75
планировка кухни ресторана на 50 мест
76
Ресторант Флоор план
планировка кухни ресторана на 50 мест
77
планировка кухни ресторана на 50 мест
78
планировка кухни ресторана на 50 мест
79
планировка кухни ресторана на 50 мест
80
планировка кухни ресторана на 50 мест
81
планировка кухни ресторана на 50 мест
82
планировка кухни ресторана на 50 мест
83
планировка кухни ресторана на 50 мест
84
Расстановка оборудования в пиццерии схема
планировка кухни ресторана на 50 мест
85
планировка кухни ресторана на 50 мест
86
планировка кухни ресторана на 50 мест
87
планировка кухни ресторана на 50 мест
88
планировка кухни ресторана на 50 мест
89
планировка кухни ресторана на 50 мест
90
планировка кухни ресторана на 50 мест
91
планировка кухни ресторана на 50 мест
92
планировка кухни ресторана на 50 мест
93
планировка кухни ресторана на 50 мест
94
План интерьера кафе
планировка кухни ресторана на 50 мест
95
планировка кухни ресторана на 50 мест
96
планировка кухни ресторана на 50 мест
97
План кафе бара чертеж
планировка кухни ресторана на 50 мест
98

Организация пространства

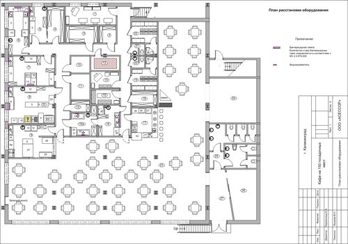
При планировании кухни для ресторана на 50 мест необходимо эффективно использовать доступное пространство. Разделение на горячую и холодную зоны, установка рабочих столов, оборудование для приготовления пищи, а также зоны для хранения продуктов - все эти аспекты требуют тщательного планирования и организации.

Мы надеемся, что представленные фотографии помогут вам в создании эффективной планировки кухни для ресторана на 50 мест. Будьте внимательны к деталям и учитывайте потребности вашего персонала и посетителей, чтобы создать комфортное и функциональное пространство.

Оставьте комментарий

Ваш электронный адрес не будет опубликован.