• Главная
  • планировки одноэтажного дома с тремя спальнями до 120 кв

Планировки одноэтажного дома с тремя спальнями до 120 кв

7 января 2024 / 0 комментариев / 35 просмотров

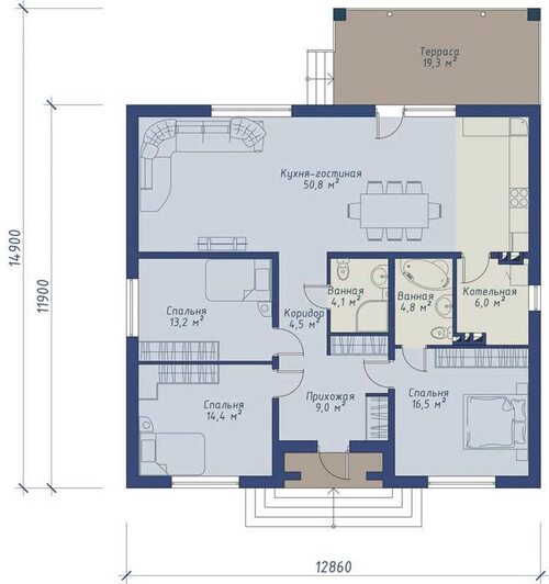
Планировка одноэтажного дома с тремя спальнями до 120 кв может быть разнообразной и функциональной. В этой статье мы рассмотрим различные варианты планировок, которые помогут вам создать уютное и комфортабельное жилье для вашей семьи.

планировки одноэтажного дома с тремя спальнями до 120 кв
1
планировки одноэтажного дома с тремя спальнями до 120 кв
2
планировки одноэтажного дома с тремя спальнями до 120 кв
3
планировки одноэтажного дома с тремя спальнями до 120 кв
4
планировки одноэтажного дома с тремя спальнями до 120 кв
5
Планировка одноэтажного коттеджа 120 м2
планировки одноэтажного дома с тремя спальнями до 120 кв
6
планировки одноэтажного дома с тремя спальнями до 120 кв
7
планировки одноэтажного дома с тремя спальнями до 120 кв
8
планировки одноэтажного дома с тремя спальнями до 120 кв
9
планировки одноэтажного дома с тремя спальнями до 120 кв
10
планировки одноэтажного дома с тремя спальнями до 120 кв
11
планировки одноэтажного дома с тремя спальнями до 120 кв
12
планировки одноэтажного дома с тремя спальнями до 120 кв
13
Одноэтажный дом 150м2 планировка с размерами
планировки одноэтажного дома с тремя спальнями до 120 кв
14
планировки одноэтажного дома с тремя спальнями до 120 кв
15
планировки одноэтажного дома с тремя спальнями до 120 кв
16
Чертежи домов одноэтажных 150м
планировки одноэтажного дома с тремя спальнями до 120 кв
17
планировки одноэтажного дома с тремя спальнями до 120 кв
18
планировки одноэтажного дома с тремя спальнями до 120 кв
19
планировки одноэтажного дома с тремя спальнями до 120 кв
20
планировки одноэтажного дома с тремя спальнями до 120 кв
21
планировки одноэтажного дома с тремя спальнями до 120 кв
22
планировки одноэтажного дома с тремя спальнями до 120 кв
23
планировки одноэтажного дома с тремя спальнями до 120 кв
24
планировки одноэтажного дома с тремя спальнями до 120 кв
25
Планировка финских домов одноэтажных 150 м2
планировки одноэтажного дома с тремя спальнями до 120 кв
26
планировки одноэтажного дома с тремя спальнями до 120 кв
27
планировки одноэтажного дома с тремя спальнями до 120 кв
28
планировки одноэтажного дома с тремя спальнями до 120 кв
29
планировки одноэтажного дома с тремя спальнями до 120 кв
30
планировки одноэтажного дома с тремя спальнями до 120 кв
31
планировки одноэтажного дома с тремя спальнями до 120 кв
32
планировки одноэтажного дома с тремя спальнями до 120 кв
33
планировки одноэтажного дома с тремя спальнями до 120 кв
34
планировки одноэтажного дома с тремя спальнями до 120 кв
35
планировки одноэтажного дома с тремя спальнями до 120 кв
36
планировки одноэтажного дома с тремя спальнями до 120 кв
37
планировки одноэтажного дома с тремя спальнями до 120 кв
38
планировки одноэтажного дома с тремя спальнями до 120 кв
39
планировки одноэтажного дома с тремя спальнями до 120 кв
40
Дом 60 м2 одноэтажный планировка 2 спальни
планировки одноэтажного дома с тремя спальнями до 120 кв
41
планировки одноэтажного дома с тремя спальнями до 120 кв
42
планировки одноэтажного дома с тремя спальнями до 120 кв
43
Одноэтажный дом на 250м2 планировка
планировки одноэтажного дома с тремя спальнями до 120 кв
44
планировки одноэтажного дома с тремя спальнями до 120 кв
45
планировки одноэтажного дома с тремя спальнями до 120 кв
46
планировки одноэтажного дома с тремя спальнями до 120 кв
47
планировки одноэтажного дома с тремя спальнями до 120 кв
48
планировки одноэтажного дома с тремя спальнями до 120 кв
49
Дом 100 м2 одноэтажный планировка
планировки одноэтажного дома с тремя спальнями до 120 кв
50
планировки одноэтажного дома с тремя спальнями до 120 кв
51
планировки одноэтажного дома с тремя спальнями до 120 кв
52
планировки одноэтажного дома с тремя спальнями до 120 кв
53
планировки одноэтажного дома с тремя спальнями до 120 кв
54
планировки одноэтажного дома с тремя спальнями до 120 кв
55
планировки одноэтажного дома с тремя спальнями до 120 кв
56
планировки одноэтажного дома с тремя спальнями до 120 кв
57
планировки одноэтажного дома с тремя спальнями до 120 кв
58
планировки одноэтажного дома с тремя спальнями до 120 кв
59
планировки одноэтажного дома с тремя спальнями до 120 кв
60
планировки одноэтажного дома с тремя спальнями до 120 кв
61
планировки одноэтажного дома с тремя спальнями до 120 кв
62
планировки одноэтажного дома с тремя спальнями до 120 кв
63
планировки одноэтажного дома с тремя спальнями до 120 кв
64
планировки одноэтажного дома с тремя спальнями до 120 кв
65
планировки одноэтажного дома с тремя спальнями до 120 кв
66
планировки одноэтажного дома с тремя спальнями до 120 кв
67
планировки одноэтажного дома с тремя спальнями до 120 кв
68
планировки одноэтажного дома с тремя спальнями до 120 кв
69
планировки одноэтажного дома с тремя спальнями до 120 кв
70
планировки одноэтажного дома с тремя спальнями до 120 кв
71
планировки одноэтажного дома с тремя спальнями до 120 кв
72
планировки одноэтажного дома с тремя спальнями до 120 кв
73
планировки одноэтажного дома с тремя спальнями до 120 кв
74
планировки одноэтажного дома с тремя спальнями до 120 кв
75
планировки одноэтажного дома с тремя спальнями до 120 кв
76
планировки одноэтажного дома с тремя спальнями до 120 кв
77
планировки одноэтажного дома с тремя спальнями до 120 кв
78
планировки одноэтажного дома с тремя спальнями до 120 кв
79
планировки одноэтажного дома с тремя спальнями до 120 кв
80
планировки одноэтажного дома с тремя спальнями до 120 кв
81
планировки одноэтажного дома с тремя спальнями до 120 кв
82
планировки одноэтажного дома с тремя спальнями до 120 кв
83
планировки одноэтажного дома с тремя спальнями до 120 кв
84
планировки одноэтажного дома с тремя спальнями до 120 кв
85
планировки одноэтажного дома с тремя спальнями до 120 кв
86
планировки одноэтажного дома с тремя спальнями до 120 кв
87
планировки одноэтажного дома с тремя спальнями до 120 кв
88
Одноэтажный дом 140м2 планировка
планировки одноэтажного дома с тремя спальнями до 120 кв
89
планировки одноэтажного дома с тремя спальнями до 120 кв
90
планировки одноэтажного дома с тремя спальнями до 120 кв
91
Одноэтажный дом 140м2 планировка три комнаты
планировки одноэтажного дома с тремя спальнями до 120 кв
92
Проект z10 одноэтажный дом с террасой планировка
планировки одноэтажного дома с тремя спальнями до 120 кв
93
планировки одноэтажного дома с тремя спальнями до 120 кв
94
планировки одноэтажного дома с тремя спальнями до 120 кв
95
планировки одноэтажного дома с тремя спальнями до 120 кв
96
планировки одноэтажного дома с тремя спальнями до 120 кв
97
планировки одноэтажного дома с тремя спальнями до 120 кв
98
Дом 100 м2 одноэтажный из газобетона проекты
планировки одноэтажного дома с тремя спальнями до 120 кв
99
Чертежи одноэтажных домов 150 м2
планировки одноэтажного дома с тремя спальнями до 120 кв
100
планировки одноэтажного дома с тремя спальнями до 120 кв
101
планировки одноэтажного дома с тремя спальнями до 120 кв
102
планировки одноэтажного дома с тремя спальнями до 120 кв
103
Проекты одноэтажных домов со входом сбоку
планировки одноэтажного дома с тремя спальнями до 120 кв
104
планировки одноэтажного дома с тремя спальнями до 120 кв
105
планировки одноэтажного дома с тремя спальнями до 120 кв
106
Планировка три спальни 65м2
планировки одноэтажного дома с тремя спальнями до 120 кв
107
планировки одноэтажного дома с тремя спальнями до 120 кв
108
Дом 100 м2 одноэтажный из газобетона проекты
планировки одноэтажного дома с тремя спальнями до 120 кв
109
планировки одноэтажного дома с тремя спальнями до 120 кв
110
планировки одноэтажного дома с тремя спальнями до 120 кв
111
планировки одноэтажного дома с тремя спальнями до 120 кв
112
планировки одноэтажного дома с тремя спальнями до 120 кв
113
Дом 100 м2 одноэтажный из газобетона
планировки одноэтажного дома с тремя спальнями до 120 кв
114
планировки одноэтажного дома с тремя спальнями до 120 кв
115

Просторные спальни

Одним из ключевых аспектов планировки дома с тремя спальнями является обеспечение каждой спальни достаточным пространством. Фотографии просторных спален помогут вам выбрать оптимальный вариант для вашего дома.

Оставьте комментарий

Ваш электронный адрес не будет опубликован.