• Главная
  • замок цилиндровый врезной зв1 гост 5089 2011

Замок цилиндровый врезной зв1 ГОСТ 5089-2011

5 января 2024 / 0 комментариев / 14 просмотров

Замок цилиндровый врезной зв1 ГОСТ 5089-2011 - это один из самых надежных и удобных в использовании видов замков. Он обеспечивает высокий уровень безопасности и прост в установке. В этой статье мы рассмотрим особенности и преимущества данного типа замков, а также предоставим подробные фотографии для наглядного представления.

замок цилиндровый врезной зв1 гост 5089 2011
1
замок цилиндровый врезной зв1 гост 5089 2011
2
замок цилиндровый врезной зв1 гост 5089 2011
3
Меттэм зв 1 701.0.0
замок цилиндровый врезной зв1 гост 5089 2011
4
замок цилиндровый врезной зв1 гост 5089 2011
5
замок цилиндровый врезной зв1 гост 5089 2011
6
замок цилиндровый врезной зв1 гост 5089 2011
7
замок цилиндровый врезной зв1 гост 5089 2011
8
Гардиан 3201
замок цилиндровый врезной зв1 гост 5089 2011
9
Гардиан 62.11
замок цилиндровый врезной зв1 гост 5089 2011
10
замок цилиндровый врезной зв1 гост 5089 2011
11
замок цилиндровый врезной зв1 гост 5089 2011
12
замок цилиндровый врезной зв1 гост 5089 2011
13
замок цилиндровый врезной зв1 гост 5089 2011
14
Меттэм зв4 402.0.0
замок цилиндровый врезной зв1 гост 5089 2011
15
замок цилиндровый врезной зв1 гост 5089 2011
16
замок цилиндровый врезной зв1 гост 5089 2011
17
замок цилиндровый врезной зв1 гост 5089 2011
18
замок цилиндровый врезной зв1 гост 5089 2011
19
замок цилиндровый врезной зв1 гост 5089 2011
20
Замки меттэм 341.1.0
замок цилиндровый врезной зв1 гост 5089 2011
21
замок цилиндровый врезной зв1 гост 5089 2011
22
замок цилиндровый врезной зв1 гост 5089 2011
23
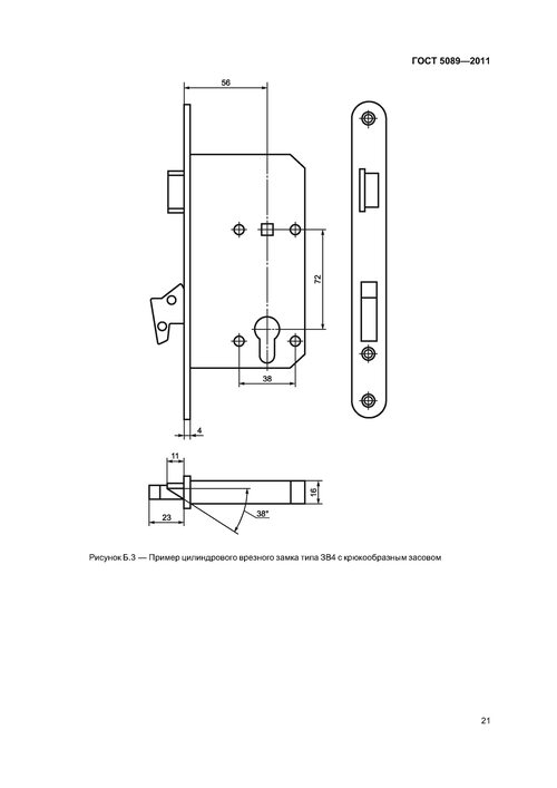
Зв4-72.03 ЗАЗ межосевое 72 мм
замок цилиндровый врезной зв1 гост 5089 2011
24
замок цилиндровый врезной зв1 гост 5089 2011
25
замок цилиндровый врезной зв1 гост 5089 2011
26
замок цилиндровый врезной зв1 гост 5089 2011
27
Гардиан 2512т
замок цилиндровый врезной зв1 гост 5089 2011
28
замок цилиндровый врезной зв1 гост 5089 2011
29
замок цилиндровый врезной зв1 гост 5089 2011
30
замок цилиндровый врезной зв1 гост 5089 2011
31
замок цилиндровый врезной зв1 гост 5089 2011
32
Чертеж ручки меттэм зв4 402
замок цилиндровый врезной зв1 гост 5089 2011
33
замок цилиндровый врезной зв1 гост 5089 2011
34
замок цилиндровый врезной зв1 гост 5089 2011
35
замок цилиндровый врезной зв1 гост 5089 2011
36
замок цилиндровый врезной зв1 гост 5089 2011
37
замок цилиндровый врезной зв1 гост 5089 2011
38
замок цилиндровый врезной зв1 гост 5089 2011
39
замок цилиндровый врезной зв1 гост 5089 2011
40
замок цилиндровый врезной зв1 гост 5089 2011
41
замок цилиндровый врезной зв1 гост 5089 2011
42
замок цилиндровый врезной зв1 гост 5089 2011
43
замок цилиндровый врезной зв1 гост 5089 2011
44
замок цилиндровый врезной зв1 гост 5089 2011
45
замок цилиндровый врезной зв1 гост 5089 2011
46
Зв4 меттэм 401.0.0 зв-4-01 12004
замок цилиндровый врезной зв1 гост 5089 2011
47
замок цилиндровый врезной зв1 гост 5089 2011
48
замок цилиндровый врезной зв1 гост 5089 2011
49
замок цилиндровый врезной зв1 гост 5089 2011
50
замок цилиндровый врезной зв1 гост 5089 2011
51
замок цилиндровый врезной зв1 гост 5089 2011
52
замок цилиндровый врезной зв1 гост 5089 2011
53

Особенности замка цилиндрового врезного зв1 ГОСТ 5089-2011

Замок цилиндровый врезной зв1 ГОСТ 5089-2011 отличается высокой степенью защиты от несанкционированного доступа благодаря современным технологиям и материалам, использованным при его производстве. Кроме того, он легко устанавливается и подходит для различных типов дверей. Фотографии этого замка позволят вам более детально ознакомиться с его конструкцией и внешним видом.

Оставьте комментарий

Ваш электронный адрес не будет опубликован.