• Главная
  • расстояние от газовой плиты до розетки на кухне

Расстояние от газовой плиты до розетки на кухне

5 января 2024 / 0 комментариев / 69 просмотров

В данной статье мы рассмотрим важные аспекты определения расстояния от газовой плиты до розетки на кухне. Будут рассмотрены основные правила безопасности и рекомендации по установке электрических розеток вблизи газовых плит.

расстояние от газовой плиты до розетки на кухне
1
расстояние от газовой плиты до розетки на кухне
2
Схема сантехнический монтаж кухня
расстояние от газовой плиты до розетки на кухне
3
расстояние от газовой плиты до розетки на кухне
4
Стандарт розеток снизу
расстояние от газовой плиты до розетки на кухне
5
расстояние от газовой плиты до розетки на кухне
6
расстояние от газовой плиты до розетки на кухне
7
Высота кухонной столешницы стандарт для кухни
расстояние от газовой плиты до розетки на кухне
8
Схема подключения кухонной вытяжки к электросети
расстояние от газовой плиты до розетки на кухне
9
расстояние от газовой плиты до розетки на кухне
10
расстояние от газовой плиты до розетки на кухне
11
Высота установки розеток духового шкафа и микроволновки
расстояние от газовой плиты до розетки на кухне
12
Розетка для посудомойки расположение
расстояние от газовой плиты до розетки на кухне
13
расстояние от газовой плиты до розетки на кухне
14
Розетка для духового шкафа расположение сзади
расстояние от газовой плиты до розетки на кухне
15
расстояние от газовой плиты до розетки на кухне
16
расстояние от газовой плиты до розетки на кухне
17
расстояние от газовой плиты до розетки на кухне
18
Эргономика кухни
расстояние от газовой плиты до розетки на кухне
19
расстояние от газовой плиты до розетки на кухне
20
расстояние от газовой плиты до розетки на кухне
21
расстояние от газовой плиты до розетки на кухне
22
расстояние от газовой плиты до розетки на кухне
23
расстояние от газовой плиты до розетки на кухне
24
расстояние от газовой плиты до розетки на кухне
25
расстояние от газовой плиты до розетки на кухне
26
расстояние от газовой плиты до розетки на кухне
27
Розетка для духового шкафа расположение сзади
расстояние от газовой плиты до розетки на кухне
28
расстояние от газовой плиты до розетки на кухне
29
Высота монтажа водорозеток для стиральной машины
расстояние от газовой плиты до розетки на кухне
30
расстояние от газовой плиты до розетки на кухне
31
расстояние от газовой плиты до розетки на кухне
32
расстояние от газовой плиты до розетки на кухне
33
расстояние от газовой плиты до розетки на кухне
34
Высота кухонной столешницы стандарт
расстояние от газовой плиты до розетки на кухне
35
Схемы установки газового счетчика на плиту
расстояние от газовой плиты до розетки на кухне
36
Beko hii 64401 MTX
расстояние от газовой плиты до розетки на кухне
37
Розетка для духового шкафа
расстояние от газовой плиты до розетки на кухне
38
расстояние от газовой плиты до розетки на кухне
39
Электровывод для подсветки шкафа высота
расстояние от газовой плиты до розетки на кухне
40
СЗ-1 сигнализатор загазованности схема подключения
расстояние от газовой плиты до розетки на кухне
41
Расположение розеток
расстояние от газовой плиты до розетки на кухне
42
На какой высоте крепить кухонную вытяжку
расстояние от газовой плиты до розетки на кухне
43
Схема монтажа электропроводки кабель
расстояние от газовой плиты до розетки на кухне
44
Высота вытяжки над газовой плитой
расстояние от газовой плиты до розетки на кухне
45
расстояние от газовой плиты до розетки на кухне
46
расстояние от газовой плиты до розетки на кухне
47
Расположение розеток в кухонном гарнитуре
расстояние от газовой плиты до розетки на кухне
48
Высота кухонной вытяжки
расстояние от газовой плиты до розетки на кухне
49
расстояние от газовой плиты до розетки на кухне
50
Расположение розеток
расстояние от газовой плиты до розетки на кухне
51
расстояние от газовой плиты до розетки на кухне
52
Расположение розеток
расстояние от газовой плиты до розетки на кухне
53
Расположение розеток
расстояние от газовой плиты до розетки на кухне
54
расстояние от газовой плиты до розетки на кухне
55
расстояние от газовой плиты до розетки на кухне
56
расстояние от газовой плиты до розетки на кухне
57
расстояние от газовой плиты до розетки на кухне
58
расстояние от газовой плиты до розетки на кухне
59
Газовая плита с газовой духовкой требования к установке
расстояние от газовой плиты до розетки на кухне
60
Высота расположения розеток для телевизора
расстояние от газовой плиты до розетки на кухне
61
Высота установки вывода под раковину на кухню
расстояние от газовой плиты до розетки на кухне
62
Розетка для духового шкафа расположение сзади
расстояние от газовой плиты до розетки на кухне
63
расстояние от газовой плиты до розетки на кухне
64
расстояние от газовой плиты до розетки на кухне
65
Электрическая варочная панель Kuche CSG 431 B
расстояние от газовой плиты до розетки на кухне
66
расстояние от газовой плиты до розетки на кухне
67
Faber orizzonte Plus eg8 x a90 Active
расстояние от газовой плиты до розетки на кухне
68
расстояние от газовой плиты до розетки на кухне
69
Размещение кухонных шкафов по высоте
расстояние от газовой плиты до розетки на кухне
70
расстояние от газовой плиты до розетки на кухне
71
расстояние от газовой плиты до розетки на кухне
72
Высота розеток фартука кухни стандарт
расстояние от газовой плиты до розетки на кухне
73
Схема монтажа газовой колонки
расстояние от газовой плиты до розетки на кухне
74
Схема подключения газового счетчика
расстояние от газовой плиты до розетки на кухне
75
расстояние от газовой плиты до розетки на кухне
76
Схема подключения кухонной вытяжки к вентканалу
расстояние от газовой плиты до розетки на кухне
77
расстояние от газовой плиты до розетки на кухне
78
Стандарт розеток снизу
расстояние от газовой плиты до розетки на кухне
79
Индукционная варочная поверхность Bosch схема встройки
расстояние от газовой плиты до розетки на кухне
80
Схемы подключения газового оборудования в квартире
расстояние от газовой плиты до розетки на кухне
81
расстояние от газовой плиты до розетки на кухне
82
Нормы для установки настенных газовых котлов отопления
расстояние от газовой плиты до розетки на кухне
83
Вывод кабеля для подсветки столешницы кухни
расстояние от газовой плиты до розетки на кухне
84
Проводка газовых труб в квартире
расстояние от газовой плиты до розетки на кухне
85
Эргономика кухонного гарнитура линейного
расстояние от газовой плиты до розетки на кухне
86
расстояние от газовой плиты до розетки на кухне
87
Индукционная варочная панель Whirlpool smp 658c/BT/IXL
расстояние от газовой плиты до розетки на кухне
88
расстояние от газовой плиты до розетки на кухне
89
Газовая варочная панель Гефест ПВГ 1212
расстояние от газовой плиты до розетки на кухне
90
расстояние от газовой плиты до розетки на кухне
91
расстояние от газовой плиты до розетки на кухне
92
расстояние от газовой плиты до розетки на кухне
93
Проводка для кухонного гарнитура
расстояние от газовой плиты до розетки на кухне
94
расстояние от газовой плиты до розетки на кухне
95
Схема установки счетчика газа
расстояние от газовой плиты до розетки на кухне
96
расстояние от газовой плиты до розетки на кухне
97
расстояние от газовой плиты до розетки на кухне
98
расстояние от газовой плиты до розетки на кухне
99
Электропровод для кухонной вытяжки
расстояние от газовой плиты до розетки на кухне
100
Золотой треугольник плита мойка холодильник
расстояние от газовой плиты до розетки на кухне
101
расстояние от газовой плиты до розетки на кухне
102
расстояние от газовой плиты до розетки на кухне
103

Определение безопасного расстояния

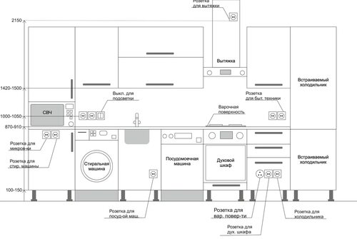
Для начала необходимо учитывать требования нормативных документов и правил электробезопасности. Обычно расстояние от газовой плиты до розетки должно быть не менее 15 см, чтобы избежать возгорания электропроводки от открытого пламени. Важно также учитывать особенности конкретной кухонной ситуации и соблюдать все предписания профессионалов при проведении работ по установке и ремонту электрооборудования.

Оставьте комментарий

Ваш электронный адрес не будет опубликован.