Расстояние от шкафа до двери

4 января 2024 / 0 комментариев / 17 просмотров

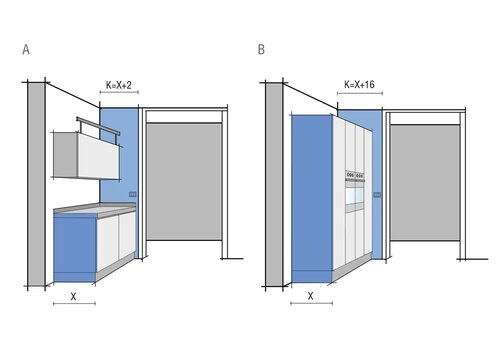
Измерение расстояния от шкафа до двери является важным аспектом при планировании интерьера. Правильно подобранное расстояние поможет создать комфортное и функциональное пространство в вашем доме или офисе.

расстояние от шкафа до двери
1
расстояние от шкафа до двери
2
расстояние от шкафа до двери
3
Эргономика прихожей схема с размерами
расстояние от шкафа до двери
4
расстояние от шкафа до двери
5
расстояние от шкафа до двери
6
Гардеробная комната планировка с размерами 1.5х1.5 Леруа Мерлен
расстояние от шкафа до двери
7
расстояние от шкафа до двери
8
расстояние от шкафа до двери
9
расстояние от шкафа до двери
10
расстояние от шкафа до двери
11
Присадка мебельной петли 35мм Хеттих
расстояние от шкафа до двери
12
расстояние от шкафа до двери
13
Встроенный холодильник вид сзади
расстояние от шкафа до двери
14
Три петли на межкомнатную дверь
расстояние от шкафа до двери
15
расстояние от шкафа до двери
16
расстояние от шкафа до двери
17
Эргономика кухни
расстояние от шкафа до двери
18
На каком расстоянии устанавливаются ручки на кухонные фасады
расстояние от шкафа до двери
19
расстояние от шкафа до двери
20
Эргономика спальни
расстояние от шкафа до двери
21
Дверь купе межкомнатная схема монтажа
расстояние от шкафа до двери
22
Платяной шкаф Гранада 60x206x38
расстояние от шкафа до двери
23
Схема присадок под петли на фасадах
расстояние от шкафа до двери
24
Стандартная высота верхних кухонных шкафов Селена 205
расстояние от шкафа до двери
25
расстояние от шкафа до двери
26
Тип открывания входных дверей схема
расстояние от шкафа до двери
27
расстояние от шкафа до двери
28
расстояние от шкафа до двери
29
расстояние от шкафа до двери
30
Эргономика спальни Нойферт
расстояние от шкафа до двери
31
Чертеж гардеробной с размерами 5кв
расстояние от шкафа до двери
32
Высота установки навесных кухонных шкафов
расстояние от шкафа до двери
33
Встраиваемая посудомоечная машина 45 схема монтажа
расстояние от шкафа до двери
34
расстояние от шкафа до двери
35
Развертка гардеробной
расстояние от шкафа до двери
36
Клеппстад гардероб 3-дверный белый 117x176
расстояние от шкафа до двери
37
Платяной шкаф Гранада 60x206x38
расстояние от шкафа до двери
38
Место для гладильной доски в шкафу купе
расстояние от шкафа до двери
39
Петля Kubica 6360/38
расстояние от шкафа до двери
40
Размер проёма для межкомнатных дверей 700 с коробкой
расстояние от шкафа до двери
41
Расположение выключателей от пола евростандарт
расстояние от шкафа до двери
42
Система раздвижных дверей МРД-2
расстояние от шкафа до двери
43
Размещение розеток в спальне схема
расстояние от шкафа до двери
44
расстояние от шкафа до двери
45
расстояние от шкафа до двери
46
расстояние от шкафа до двери
47
Шкаф купе чертеж 2400 с нишей для телевизора
расстояние от шкафа до двери
48
расстояние от шкафа до двери
49
Сборка дверей купе аристо
расстояние от шкафа до двери
50
расстояние от шкафа до двери
51
Шкаф серверный 800 1000 dwg чертеж
расстояние от шкафа до двери
52
Ширина прохода в гардеробной
расстояние от шкафа до двери
53
Минимальные габариты гардеробной
расстояние от шкафа до двери
54
расстояние от шкафа до двери
55
Шкаф купе 1800х2400х600 чертеж
расстояние от шкафа до двери
56
Размещение вещей в шкафу
расстояние от шкафа до двери
57
Эргономика мебели для спальни
расстояние от шкафа до двери
58
Hettich петля для холодильника et582 72134
расстояние от шкафа до двери
59
расстояние от шкафа до двери
60
расстояние от шкафа до двери
61
Эргономика кухни высота шкафов
расстояние от шкафа до двери
62
Технологические зазоры на кухне
расстояние от шкафа до двери
63
Размещение унитаза в туалете нормы
расстояние от шкафа до двери
64
Схема расположения вещей в гардеробной
расстояние от шкафа до двери
65
расстояние от шкафа до двери
66
расстояние от шкафа до двери
67
расстояние от шкафа до двери
68
расстояние от шкафа до двери
69
Промежуток между полками в шкафу
расстояние от шкафа до двери
70
Эргономика гардеробной Нойферт
расстояние от шкафа до двери
71
Эргономичная планировка спальни
расстояние от шкафа до двери
72
Высота нижних шкафов кухни икеа
расстояние от шкафа до двери
73
Схема установки водорозеток на кухне
расстояние от шкафа до двери
74
Шкаф купе конструкция схема
расстояние от шкафа до двери
75
Крепление ручек на фасады
расстояние от шкафа до двери
76
Закладные под гипсокартон схема
расстояние от шкафа до двери
77
Шкаф купе 1800х2400х600 чертеж
расстояние от шкафа до двери
78
Петля мебельная накладная get hb340a.100, clip-on, 35 мм, 105°
расстояние от шкафа до двери
79
расстояние от шкафа до двери
80
расстояние от шкафа до двери
81
расстояние от шкафа до двери
82
Стандартная высота верхних кухонных шкафов Селена 205
расстояние от шкафа до двери
83
Высота штанги для одежды
расстояние от шкафа до двери
84
расстояние от шкафа до двери
85
Высота кухонной столешницы стандарт для кухни
расстояние от шкафа до двери
86
Ширина дверного проёма для инвалидной коляски
расстояние от шкафа до двери
87
Петля мебельная Fit 105* clip-on HS С доводчиком чертеж
расстояние от шкафа до двери
88
План расстановки мебели в спальне
расстояние от шкафа до двери
89
Ширина прихожей эргономика
расстояние от шкафа до двери
90
расстояние от шкафа до двери
91
расстояние от шкафа до двери
92
расстояние от шкафа до двери
93
Пенал Eclisse unico 100/125
расстояние от шкафа до двери
94
Схема сантехнический монтаж кухня
расстояние от шкафа до двери
95
Высота штанги для одежды
расстояние от шкафа до двери
96
расстояние от шкафа до двери
97
Гардеробная Размеры план
расстояние от шкафа до двери
98
Чертеж угловой гардеробной с размерами
расстояние от шкафа до двери
99
Нойферт эргономика шкаф
расстояние от шкафа до двери
100
Чертеж распила ДСП для гардеробной
расстояние от шкафа до двери
101
Разметка под мебельные вкладные петли 35 мм вкладные
расстояние от шкафа до двери
102
Шкаф 2х СТВ на 2м купе чертеж
расстояние от шкафа до двери
103
расстояние от шкафа до двери
104
Спальня 9м2 квадратная расстановка мебели
расстояние от шкафа до двери
105
Как сделать разметку под мебельные петли
расстояние от шкафа до двери
106
расстояние от шкафа до двери
107
расстояние от шкафа до двери
108
Схема монтажа добора дверного
расстояние от шкафа до двери
109
Размещение выключателя от дверного проема

Советы по измерению

Перед тем как определить расстояние от шкафа до двери, учтите особенности помещения, тип мебели и индивидуальные предпочтения. Измерьте расстояние с учетом открывания двери, удобства использования шкафа и общей организации пространства.

Оставьте комментарий

Ваш электронный адрес не будет опубликован.