• Главная
  • на каком расстоянии столешница должна нависать над фасадом

На каком расстоянии столешница должна нависать над фасадом

1 января 2024 / 0 комментариев / 48 просмотров

Правильное расстояние между столешницей и фасадом кухонного шкафа играет важную роль в общем визуальном восприятии кухни. Оно влияет на функциональность и эстетику пространства. В данной статье мы рассмотрим, как выбрать оптимальное расстояние и дадим практические советы по его определению.

на каком расстоянии столешница должна нависать над фасадом
1
Свесы столешницы на кухне спереди
на каком расстоянии столешница должна нависать над фасадом
2
Шале-03 Ivory
на каком расстоянии столешница должна нависать над фасадом
3
Свес столешницы спереди в см
на каком расстоянии столешница должна нависать над фасадом
4
на каком расстоянии столешница должна нависать над фасадом
5
на каком расстоянии столешница должна нависать над фасадом
6
Напуск столешницы над фасадами
на каком расстоянии столешница должна нависать над фасадом
7
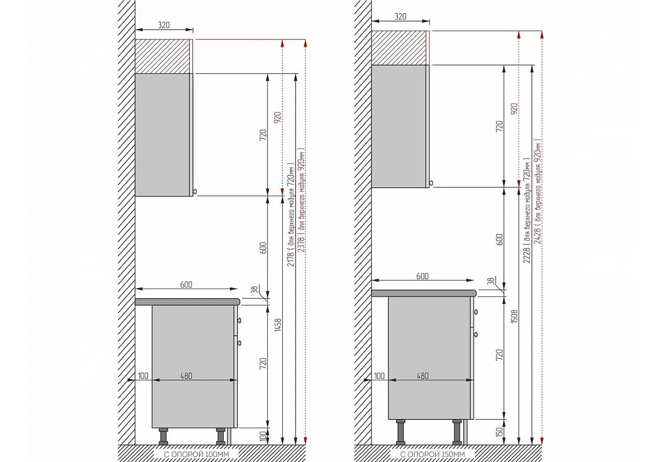
Высота закладных для кухонных навесных шкафов
на каком расстоянии столешница должна нависать над фасадом
8
на каком расстоянии столешница должна нависать над фасадом
9
Свес столешницы
на каком расстоянии столешница должна нависать над фасадом
10
на каком расстоянии столешница должна нависать над фасадом
11
Свес столешницы
на каком расстоянии столешница должна нависать над фасадом
12
Шпаргалка по кухне фасады
на каком расстоянии столешница должна нависать над фасадом
13
Передний свес столешницы на кухне
на каком расстоянии столешница должна нависать над фасадом
14
на каком расстоянии столешница должна нависать над фасадом
15
на каком расстоянии столешница должна нависать над фасадом
16
на каком расстоянии столешница должна нависать над фасадом
17
Зачем нужен свес столешницы над фасадами по нормативам
на каком расстоянии столешница должна нависать над фасадом
18
Свес столешницы
на каком расстоянии столешница должна нависать над фасадом
19
Высота нижних кухонных шкафов со столешницей
на каком расстоянии столешница должна нависать над фасадом
20
Профиль gola угловой модуль
на каком расстоянии столешница должна нависать над фасадом
21
на каком расстоянии столешница должна нависать над фасадом
22
на каком расстоянии столешница должна нависать над фасадом
23
Описание кухни направляющие Блюм ЛДСП Эггер
на каком расстоянии столешница должна нависать над фасадом
24
Свесы столешницы по периметру относительно каркаса
на каком расстоянии столешница должна нависать над фасадом
25
на каком расстоянии столешница должна нависать над фасадом
26
на каком расстоянии столешница должна нависать над фасадом
27
Скошенный кухонный шкаф
на каком расстоянии столешница должна нависать над фасадом
28
Высота установки кухонных шкафов
на каком расстоянии столешница должна нависать над фасадом
29
на каком расстоянии столешница должна нависать над фасадом
30
Стандартная высота установки кухонной столешницы
на каком расстоянии столешница должна нависать над фасадом
31
Высота кухни икеа со столешницей
на каком расстоянии столешница должна нависать над фасадом
32
Нависание столешницы на кухне
на каком расстоянии столешница должна нависать над фасадом
33
Высота кухни от пола до столешницы стандарт
на каком расстоянии столешница должна нависать над фасадом
34
Высота навесного кухонного шкафа от столешницы
на каком расстоянии столешница должна нависать над фасадом
35
Высота кухни эргономика
на каком расстоянии столешница должна нависать над фасадом
36
Высота барной стойки эргономика
на каком расстоянии столешница должна нависать над фасадом
37
Эргономика кухни высота шкафов
на каком расстоянии столешница должна нависать над фасадом
38
Высота кухонной столешницы стандарт
на каком расстоянии столешница должна нависать над фасадом
39
Высота кухонной столешницы стандарт
на каком расстоянии столешница должна нависать над фасадом
40
Высота установки розеток на кухне над столешницей
на каком расстоянии столешница должна нависать над фасадом
41
Высота столешницы кухонного гарнитура стандарт для кухни от пола
на каком расстоянии столешница должна нависать над фасадом
42
Глубина кухонной столешницы стандарт
на каком расстоянии столешница должна нависать над фасадом
43
Высота кухонной столешницы стандарт для кухни
на каком расстоянии столешница должна нависать над фасадом
44
на каком расстоянии столешница должна нависать над фасадом
45
Высота установки закладных для кухонных шкафов
на каком расстоянии столешница должна нависать над фасадом
46
Высота верхних шкафов кухни стандарт от столешницы
на каком расстоянии столешница должна нависать над фасадом
47
Высота кухонной столешницы от пола стандарт розетки
на каком расстоянии столешница должна нависать над фасадом
48
Высота столешницы кухонного гарнитура стандарт для кухни от пола
на каком расстоянии столешница должна нависать над фасадом
49
Стандартная высота верхних кухонных шкафов Селена 205
на каком расстоянии столешница должна нависать над фасадом
50
Высота нижних шкафов кухни икеа
на каком расстоянии столешница должна нависать над фасадом
51
Высота фартука от пола в кухне стандарт на кухне
на каком расстоянии столешница должна нависать над фасадом
52
Высота розеток фартука кухни стандарт
на каком расстоянии столешница должна нависать над фасадом
53
Высота между плитой и вытяжкой
на каком расстоянии столешница должна нависать над фасадом
54
Расстояние от мойки до газовой плиты
на каком расстоянии столешница должна нависать над фасадом
55
на каком расстоянии столешница должна нависать над фасадом
56
на каком расстоянии столешница должна нависать над фасадом
57
Правильная эргономика кухни
на каком расстоянии столешница должна нависать над фасадом
58
Высота кухонной столешницы от пола стандарт
на каком расстоянии столешница должна нависать над фасадом
59
Высота столешницы кухонного гарнитура стандарт для кухни
на каком расстоянии столешница должна нависать над фасадом
60
Эргономика кухни высота шкафов
на каком расстоянии столешница должна нависать над фасадом
61
На какой высоте устанавливается розетка для электроплиты
на каком расстоянии столешница должна нависать над фасадом
62
Глубина верхних шкафов кухни
на каком расстоянии столешница должна нависать над фасадом
63
Фантазмиртовый SF 425 фасад для кухни Размеры
на каком расстоянии столешница должна нависать над фасадом
64
Кухонный гарнитур Размеры
на каком расстоянии столешница должна нависать над фасадом
65
Эргономика кухонной мебели
на каком расстоянии столешница должна нависать над фасадом
66
Высота кухонной столешницы эргономика
на каком расстоянии столешница должна нависать над фасадом
67
Схема разводки электропроводки на кухне под встраиваемую технику
на каком расстоянии столешница должна нависать над фасадом
68
Высота цоколя кухни стандарт
на каком расстоянии столешница должна нависать над фасадом
69
Схема освещения на кухне
на каком расстоянии столешница должна нависать над фасадом
70
Ширина кухонной столешницы стандарт
на каком расстоянии столешница должна нависать над фасадом
71
на каком расстоянии столешница должна нависать над фасадом
72
Стандартная высота барной стойки
на каком расстоянии столешница должна нависать над фасадом
73
на каком расстоянии столешница должна нависать над фасадом
74
Встроить варочную панель в столешницу
на каком расстоянии столешница должна нависать над фасадом
75
Кухонный гарнитур чертеж
на каком расстоянии столешница должна нависать над фасадом
76
Кухонные гарнитуры Размеры
на каком расстоянии столешница должна нависать над фасадом
77
на каком расстоянии столешница должна нависать над фасадом
78
Кухонные столешницы МДФ
на каком расстоянии столешница должна нависать над фасадом
79
Высота розеток на кухне от столешницы стандарт
на каком расстоянии столешница должна нависать над фасадом
80
Мебельная опора, с регулировкой, несущая способность 200 кг
на каком расстоянии столешница должна нависать над фасадом
81
Эргономика кухни высота фартука
на каком расстоянии столешница должна нависать над фасадом
82
Высота кухонного гарнитура от пола до столешницы стандарт для кухни
на каком расстоянии столешница должна нависать над фасадом
83
Кухонный гарнитур Бланка СТЛ.094.00 белый/дуб кремона
на каком расстоянии столешница должна нависать над фасадом
84
на каком расстоянии столешница должна нависать над фасадом
85
Высота кухонных шкафов от пола до столешницы стандарт
на каком расстоянии столешница должна нависать над фасадом
86
Схема крепления столешницы на кухне
на каком расстоянии столешница должна нависать над фасадом
87
Расстояние от столешницы до навесных шкафов на кухне стандарт
на каком расстоянии столешница должна нависать над фасадом
88
Эргономика кухни высота вытяжки
на каком расстоянии столешница должна нависать над фасадом
89
Кухня принцип формирования

Советы по выбору расстояния

1. Учитывайте тип материала столешницы и фасада. Например, для столешницы из искусственного камня рекомендуется большее расстояние, чем для деревянной.

Оставьте комментарий

Ваш электронный адрес не будет опубликован.