• Главная
  • высота установки розеток для телевизора на стене в спальне

Высота установки розеток для телевизора на стене в спальне

10 января 2024 / 0 комментариев / 36 просмотров

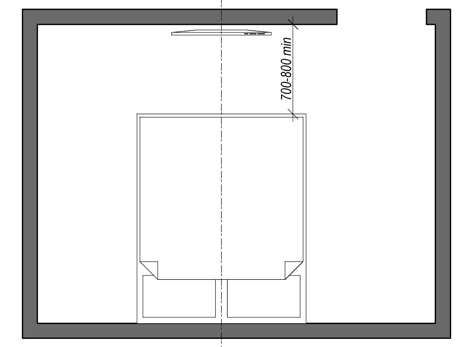
Когда дело касается установки розеток для телевизора в спальне, важно учесть оптимальную высоту размещения. На практике это может оказаться не так просто, поэтому мы подготовили подробное руководство с фотографиями.

высота установки розеток для телевизора на стене в спальне
1
высота установки розеток для телевизора на стене в спальне
2
высота установки розеток для телевизора на стене в спальне
3
высота установки розеток для телевизора на стене в спальне
4
высота установки розеток для телевизора на стене в спальне
5
высота установки розеток для телевизора на стене в спальне
6
Sonorous MD 8140 C INX Mol
высота установки розеток для телевизора на стене в спальне
7
высота установки розеток для телевизора на стене в спальне
8
высота установки розеток для телевизора на стене в спальне
9
высота установки розеток для телевизора на стене в спальне
10
высота установки розеток для телевизора на стене в спальне
11
высота установки розеток для телевизора на стене в спальне
12
высота установки розеток для телевизора на стене в спальне
13
высота установки розеток для телевизора на стене в спальне
14
высота установки розеток для телевизора на стене в спальне
15
Стойка с кронштейном Alteza TV-32110
высота установки розеток для телевизора на стене в спальне
16
высота установки розеток для телевизора на стене в спальне
17
высота установки розеток для телевизора на стене в спальне
18
высота установки розеток для телевизора на стене в спальне
19
высота установки розеток для телевизора на стене в спальне
20
высота установки розеток для телевизора на стене в спальне
21
высота установки розеток для телевизора на стене в спальне
22
Розетки для ТВ чертеж
высота установки розеток для телевизора на стене в спальне
23
высота установки розеток для телевизора на стене в спальне
24
высота установки розеток для телевизора на стене в спальне
25
высота установки розеток для телевизора на стене в спальне
26
высота установки розеток для телевизора на стене в спальне
27
высота установки розеток для телевизора на стене в спальне
28
высота установки розеток для телевизора на стене в спальне
29
высота установки розеток для телевизора на стене в спальне
30
высота установки розеток для телевизора на стене в спальне
31
Телевизор с кабель каналом схема
высота установки розеток для телевизора на стене в спальне
32
высота установки розеток для телевизора на стене в спальне
33
высота установки розеток для телевизора на стене в спальне
34
Sonorous pl 2130 b HBLK
высота установки розеток для телевизора на стене в спальне
35
высота установки розеток для телевизора на стене в спальне
36
Розетки под навесной телевизор
высота установки розеток для телевизора на стене в спальне
37
высота установки розеток для телевизора на стене в спальне
38
высота установки розеток для телевизора на стене в спальне
39
Розетки под телевизор
высота установки розеток для телевизора на стене в спальне
40
высота установки розеток для телевизора на стене в спальне
41
высота установки розеток для телевизора на стене в спальне
42
высота установки розеток для телевизора на стене в спальне
43
высота установки розеток для телевизора на стене в спальне
44
высота установки розеток для телевизора на стене в спальне
45
высота установки розеток для телевизора на стене в спальне
46
высота установки розеток для телевизора на стене в спальне
47
высота установки розеток для телевизора на стене в спальне
48
На какой высоте вешать ТВ
высота установки розеток для телевизора на стене в спальне
49
высота установки розеток для телевизора на стене в спальне
50
высота установки розеток для телевизора на стене в спальне
51
высота установки розеток для телевизора на стене в спальне
52
Эргономика спальни
высота установки розеток для телевизора на стене в спальне
53
Телевизор на стену габариты
высота установки розеток для телевизора на стене в спальне
54
высота установки розеток для телевизора на стене в спальне
55
высота установки розеток для телевизора на стене в спальне
56
высота установки розеток для телевизора на стене в спальне
57
Телевизортот пола на стену
высота установки розеток для телевизора на стене в спальне
58
Размещение розетки для электрокамина
высота установки розеток для телевизора на стене в спальне
59
высота установки розеток для телевизора на стене в спальне
60
высота установки розеток для телевизора на стене в спальне
61
высота установки розеток для телевизора на стене в спальне
62
высота установки розеток для телевизора на стене в спальне
63
высота установки розеток для телевизора на стене в спальне
64
высота установки розеток для телевизора на стене в спальне
65
высота установки розеток для телевизора на стене в спальне
66
высота установки розеток для телевизора на стене в спальне
67
высота установки розеток для телевизора на стене в спальне
68
высота установки розеток для телевизора на стене в спальне
69
высота установки розеток для телевизора на стене в спальне
70
Чертежи стенок для зала
высота установки розеток для телевизора на стене в спальне
71
высота установки розеток для телевизора на стене в спальне
72
Стандарт высоты выключателя от пола
высота установки розеток для телевизора на стене в спальне
73
высота установки розеток для телевизора на стене в спальне
74
высота установки розеток для телевизора на стене в спальне
75
высота установки розеток для телевизора на стене в спальне
76
высота установки розеток для телевизора на стене в спальне
77
высота установки розеток для телевизора на стене в спальне
78
высота установки розеток для телевизора на стене в спальне
79
Розетки на развертке стен чертеж
высота установки розеток для телевизора на стене в спальне
80
высота установки розеток для телевизора на стене в спальне
81
Кронштейн Kromax Atlantis-75
высота установки розеток для телевизора на стене в спальне
82
высота установки розеток для телевизора на стене в спальне
83
высота установки розеток для телевизора на стене в спальне
84
высота установки розеток для телевизора на стене в спальне
85
высота установки розеток для телевизора на стене в спальне
86
высота установки розеток для телевизора на стене в спальне
87
высота установки розеток для телевизора на стене в спальне
88
высота установки розеток для телевизора на стене в спальне
89
высота установки розеток для телевизора на стене в спальне
90
Схема монтажа электропроводки кабель
высота установки розеток для телевизора на стене в спальне
91
высота установки розеток для телевизора на стене в спальне
92
высота установки розеток для телевизора на стене в спальне
93
Расположение выключателей от пола евростандарт
высота установки розеток для телевизора на стене в спальне
94
высота установки розеток для телевизора на стене в спальне
95
Тумба под телевизор Sonorous MD 9140
высота установки розеток для телевизора на стене в спальне
96
высота установки розеток для телевизора на стене в спальне
97
На каком расстоянии от пола устанавливают бра над кроватью сбоку
высота установки розеток для телевизора на стене в спальне
98
высота установки розеток для телевизора на стене в спальне
99
высота установки розеток для телевизора на стене в спальне
100
Зона 3 в ванной комнате ПУЭ
высота установки розеток для телевизора на стене в спальне
101
высота установки розеток для телевизора на стене в спальне
102
высота установки розеток для телевизора на стене в спальне
103
высота установки розеток для телевизора на стене в спальне
104
Телевизор в углу спальни
высота установки розеток для телевизора на стене в спальне
105
Схема штробления проводки в квартире
высота установки розеток для телевизора на стене в спальне
106
высота установки розеток для телевизора на стене в спальне
107
высота установки розеток для телевизора на стене в спальне
108
Бра Odeon Light Satellite 3900/10wb
высота установки розеток для телевизора на стене в спальне
109
высота установки розеток для телевизора на стене в спальне
110
высота установки розеток для телевизора на стене в спальне
111
Правильный замер помещения для кухни
высота установки розеток для телевизора на стене в спальне
112

Шаг 1: Подготовка к установке

Перед установкой розеток необходимо определить оптимальную высоту размещения для вашего телевизора. Это зависит от размера экрана и уровня комфорта при просмотре. Следует также учесть расположение мебели и эргономику помещения.

Оставьте комментарий

Ваш электронный адрес не будет опубликован.